
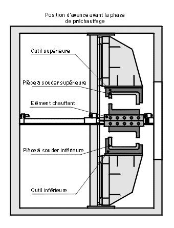
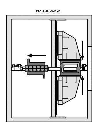
Avec le procédé de soudage par plaque ou miroir chauffant, les pièces en matière plastique sont respectivement amenées au niveau d'un élément chauffant par un outil supérieur et un outil inférieur se déplaçant verticalement jusqu'à ce que les jonctions soient plastifiées. Ensuite, l'élément chauffant est retiré horizontalement de la zone de jonction afin que les surfaces fondues puissent être pressées l'une contre l'autre. La jonction est réalisée une fois le refroidissement terminé. La machine revient ensuite en position initiale, permettant le retrait des pièces assemblées.
